Apartament 2 camere, mobilat, balcon inchis, parcare, boxa, Berceni
- 74.990 €
Detalii
Updated on ianuarie 6, 2026 la 9:34 am-
ID Proprietate P223572
-
Pret 74.990 €
-
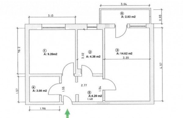
Suprafata Utila 38.00 Mp
-
Camere 2
-
Baie 1
-
Locuri Parcare 1
-
An Construire 1973
-
Tip Proprietate Apartamente
-
Vanzare/Inchiriere de vanzare
-
Etaj Etaj 7
Detalii aditionale
-
An constructie 1973
-
Locuri parcare 1
-
Compartimentare decomandat
-
Amplasament bloc de apartamente
-
Etaj Etaj 7/9
-
Balcoane 1
-
Numar toalete 1
-
Comision 2%
Descriere
Va prezentam un apartament mobilat si utilat, pregatit pentru noul proprietar in cartierul Berceni.
Zona beneficiaza de acces facil la transportul public, mall, restaurante, centre comerciale si alte facilitati urbane, ceea ce face din acest apartament o alegere excelenta pentru un stil de viata confortabil.
Apartamentul se afla intr-un bloc construit in anul 1973.
Finisaje: gresie, faianta, parchet, tamplarie PVC cu geam termopan. Usile interioare sunt schimbate iar usa de la intrare este metalica.
Balconul are o vedere ampla si frumoasa asupra zonei – inspre biserica Huedin, este calduros, inchis complet cu termopan. Intrare in bloc stradala cu verdeata.
Liftul este modernizat, camere de supraveghere in bloc, scara curata.
Apartamentul dispune de loc de parcare exact in fata + boxa de 3mp la parterul blocului.
Securitatea este garantată de ușa antifonată, interfon si camere de supravechere pe scara.
Vecini de calitate. Asociatie de proprietari organizata.
Avantaje si localizare:
• Statia STB la doar 400 m, cu acces rapid catre metrou Piata Sudului sau Metrou Brancoveanu • In apropiere: scoli, gradinite, spitalul Marie Curie, spitalul Bagdasar, piata agroalimentara, Mega Image (2 minute), magazine, restaurante si alte servicii esentiale
• Zona linistita, aerisita si excelent conectata la transport si puncte de interes
Se accepta deasemenea si plata prin credit bancar. La cerere oferim si creditul imobiliar necesar pentru achizitia proprietatii. Proprietatea are toate actele la zi iar vanzarea/cumpararea se poate face intr-un timp scurt. Persoanele interesate de aceasta proprietate pot lua legatura cu noi in vederea stabilirii unei vizionari de Luni pana Duminica inclusiv.
— Comision Cumparator: 2% (TVA Inclus)
Adresa
-
Localitate/Sector: Bucuresti
-
Cartier/Zona: Berceni
Programeaza Vizionare
Calculator Rata Bancara
-
Avans
-
Valoare imprumut
-
Rata Lunara
Informatii de Contact
Vezi Proprietatile- Top Imobiliar
- 0748 325 273
